设计|幼儿园和小学一体的贵族学校,这设计真绝!( 三 )
文章图片

文章图片
▼主题花园(幼儿园)

文章图片

文章图片
过去现在和未来
该项目成功证实了:古老的空间模式可以与当前的教育理论一同作用 , 为后代提供当代教学和学习环境 。
▼操场视角

文章图片
▼场地平面图

文章图片
▼幼儿园景观平面图

文章图片
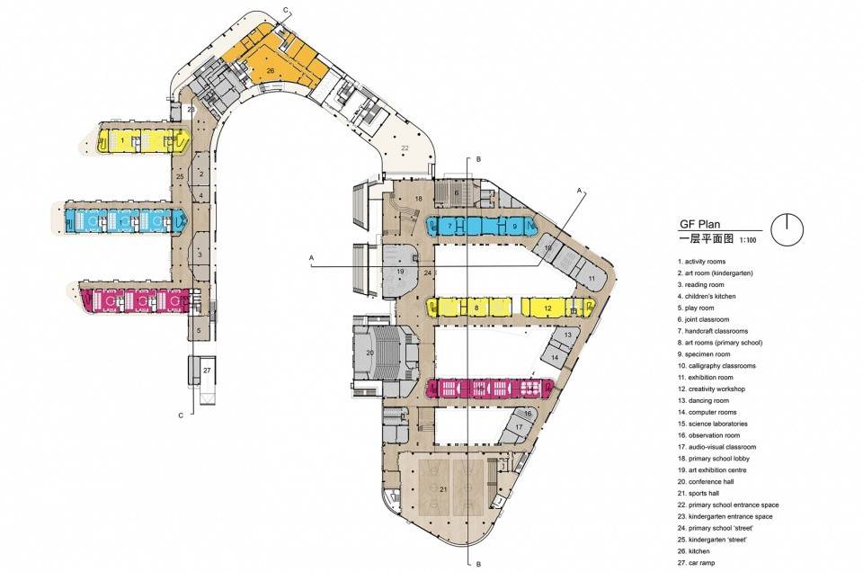
▼一层平面图

文章图片
▼二层平面图

文章图片
▼三层平面图

文章图片
▼四层平面图

文章图片
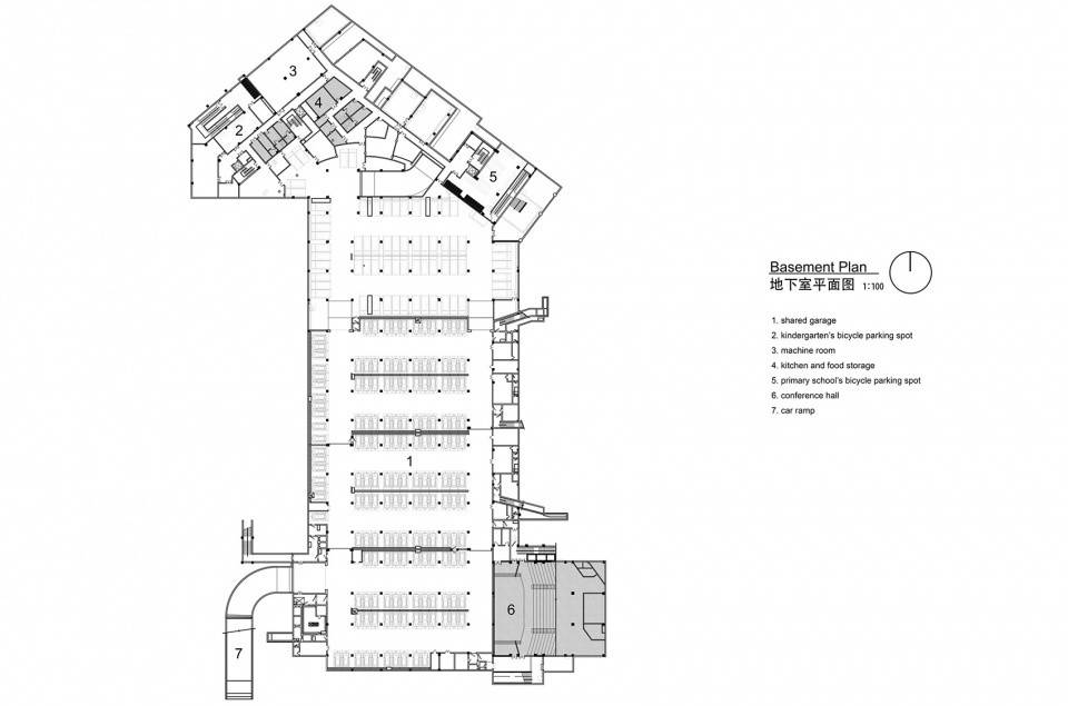
▼地下室平面图

文章图片
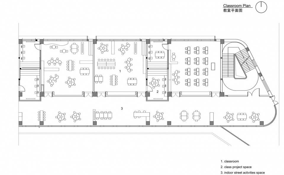
▼教室平面图

文章图片
▼立面图

文章图片
▼剖面图

文章图片
项目情况:2020年竣工
地点:江苏 , 苏州 , 苏州新区
设计年代:2017-2020
客户:苏州科技城社会事业服务中心
场地面积:55,891㎡
建筑面积:67735.95平米
建设投资:人民币4亿
类型:教育
施工单位:南通四建集团有限公司
合作设计院:苏州科技大学设计研究院有限公司
图片信息来源于网络 ,侵删 。
- 张艺谋|张艺谋讲狙击手和长津湖的区别 你怎样看待这两部电影
- 孕期要吃和不要吃的那些误区,你知道吗?
- 孟绪安结局|《流光之城》孟绪安结局是什么 冯世真和孟绪安有感情线吗
- 因为|头胎和二胎入盆时间有什么不同?二胎妈妈很着急!
- 家长|幼儿园不允许探视,爷爷想了一个办法,网友:好可爱的爷爷
- 午餐|幼儿园老师发午餐照秒撤回,眼尖家长发现不妥,群里一下子沸腾了
- 事情|儿子被人抱了一下,母亲就向幼儿园索赔8万,母亲:都可能会抑郁
- 因为|双胞胎一个被送去国际幼儿园,另一个上普通幼儿园,差距有多大?
- 孩子最佳分房睡的年龄是几岁?不是3岁和5岁,而是看这3点
- 孩子最佳分房睡的年龄是几岁?不是3岁和5岁,而是看3点
