单元房|总投资844.71万!普宁这所公办幼儿园将改扩建!
今天 ,小房君从揭阳市公共资源中心了解到 ,普宁市第一幼儿园北侧教学楼改扩建工程公开招标,总投资844.71万元 , 将 建设一幢五层综合楼 ,具体内容如下:

文章图片
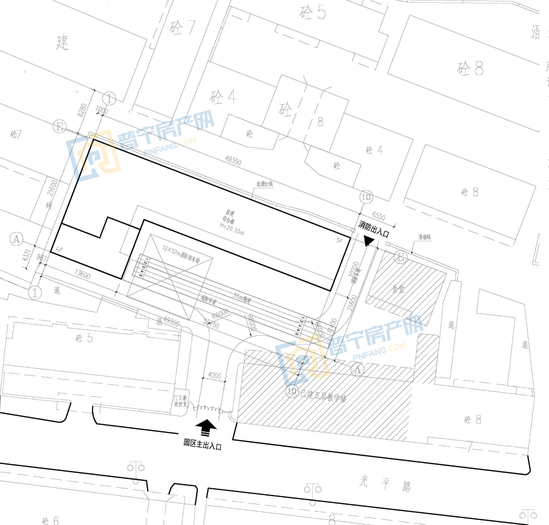
项目位于普宁市流沙西街道光平路 , 规划用地面积658平方米 , 总建筑面积3166平方米 , 建设一幢五层综合楼 , 首层为4米 , 建筑总高度21.5米;主要建设内容包括:土建、安装、室内装饰、水电安装及相关配套工程;综合楼配备:活动室、寝室、盥洗室、办公室、储藏室、财务室、教具制作兼广播室、医疗保健室、党员活动室、教研室、园务室、晨检厅、多功能室、设备间、消防出入口、跑道等基础配套设施 。 项目概算总投资844.71万元 , 其中建安工程费用785.00万元 , 本项目的建安工程招标控制价是7837757.49元 。 计划工期365个日历天 。
普宁市第一幼儿园北侧教学楼改扩建工程

文章图片

文章图片

文章图片
今年4月30日 , 普宁市第一幼儿园北侧教学楼改扩建工程设计方案对外公示 。 据了解 , 为加快公办幼儿园建设 , 切实解决我市当前普惠性幼儿园学位不足 , 优质教育资源配置不均衡等问题 , 拟建设1栋5层综合楼 ,建筑面积约3163㎡ , 首层为 幼儿园生活单元房、医疗保健室、教具制作室、财务室 , 二层为幼儿园生活单元房、园务室 , 三层为幼儿园生活单元房、办公室 , 四五层为办公室、多功能室、会议室、教师休息室等 。 本综合楼底层层高为4米 , 2~4层层高均为3.6米 , 5层层高为5.2米 , 建筑总高度为20.3米 。 目前北侧教学楼已拆除 。
【单元房|总投资844.71万!普宁这所公办幼儿园将改扩建!】

文章图片

文章图片

文章图片

文章图片
普宁市第一幼儿园

文章图片
普宁市第一幼儿园 创办于1956年9月, 系普宁市教育局直属管理的 全日制示范性公办幼儿园。 幼儿园师资队伍雄厚 , 具有先进的办园理念 , 保教设备、设施配套齐全 。 我园先后通过各类相关评审 , 获得“广东省安全文明校园”、“广东省幼儿教育课程改革试点园”、“广东省学前教育协会团体会员”、“广东省教育学会学前教育专业委员会理事单位”、“揭阳市一级幼儿园”、“揭阳市语言文字规范化示范学校”、“揭阳市女职工文明岗”等荣誉称号 。
结语

文章图片
随着普宁市第一幼儿园扩建项目的实施 , 将进一步整合优质教育资源 , 进一步提升园区基础设施和硬件配套条件 , 也能缓解周边幼儿入园难的问题 , 促进幼儿身心全面健康发展 。 期待早日启动建设 , 满足适龄儿童学位需求!
- 新生儿宝宝为什么总打嗝?
- 干预|孩子总是“坐不住”,这事多半怪家长,若有这3种习惯快改一改
- 塞牙|吃食物为什么总是容易塞牙 吃完东西就塞牙剔不出来怎么办
- 入睡|哄睡难?总夜醒?学会这5招宝宝睡得又快又香!
- 阅读|为什么说培养孩子的阅读习惯是最划算的投资这个答案很惊艳
- 补钙别总喝牛奶了,这5类全都是“补钙高手”,不知道真是太亏了
- 宝宝腹泻总反复,可能是它引起的,别傻傻当作受凉了
- 宝妈一个人在家带孩子时的6大尴尬事,总有一个你经历过!
- 孩子|孩子总是发脾气闹别扭?可能与父母的情绪管理能力有关
- 圣诞老人|孩子总是模仿童话中的场景,要不要告诉他童话是假的?